2015年に開催された『TDYリモデルスマイル作品コンテスト2015』において
当社が「窓・玄関・外まわり 審査員奨励賞」をいただきました!

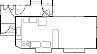
玄関ポーチが狭く、外からドアを開けるときに1段下がる必要のあった状態を改善。キッチンを減築して玄関間口を1800mmに拡張。大開口の2枚連動引戸や手すりを採用し、玄関前の階段の踏み幅を広くして足の不自由な息子さんの出入りもスムーズに。







広くなった玄関は以前より出入りがしやすくなりました。手すりの設置で昇降もスムーズになって、息子も安全に出入りできます。息子も玄関の快適さから「これからは外出が多くなるかも!」と笑顔で話しており、とてもうれしいです。併せてリモデルしたキッチンは、減築で狭くなったのに以前より使い勝手がとても良くなり、びっくりしています。収納力アップとキッチンの設定・向き・家事動線の考慮をしていただき、見た目もすっきりしました。
キッチンの減築により玄関内部、玄関ポーチをゆとりある広さとし、安全性を高めています。省スペースで使い勝手の良い引戸、踏み幅の広い階段、杖掛けにもなる手すりなど、息子さんへの配慮も行き届いています。